Introducing The Residences at Coverley, by IMAGINE – A New Place to Call Home
Discover the perfect blend of modern living and sustainable design at The Residences at Coverley, a brand-new, turnkey community offering homes for sale in an innovative master-planned residential environment. Developed by the same team behind the island’s first master-planned community, Villages at Coverley, this exciting new project promises safety, security, and a thriving neighbourhood. Construction began in January 2025.
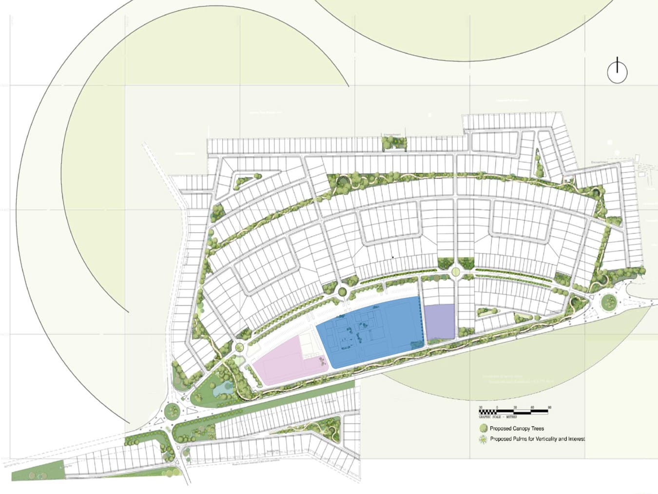
The first of four phases consists of 188 homes that presents a range of floor plans, from sleek standalone homes to contemporary townhouses, spanning one and two stories with three or four bedrooms. The community has been thoughtfully designed with safety and comfort in mind, featuring recreational spaces, children’s play areas, sports courts, and inviting seating zones. A standout feature is the meticulously crafted nature trail that winds through a significant portion of the community, flanked by canopy trees and vibrant shrubs. Pocket parks are scattered throughout, and each home will be enhanced by a tree planted in its yard, adding to the lush, green landscape and overall appeal of the area.
One of the available home designs is Cascade (pictured), a spacious three-bedroom, two and a half-bathroom residence featuring an open-plan layout, a fully equipped kitchen with appliances, a master suite with a walk-in closet, a large patio, a paved parking area, a fenced backyard, and a landscaped garden.
In addition to the homes, The Residences at Coverley will feature a new Town Square – an exciting hub with shaded lounging areas, dining venues, retail stores, green spaces, and a large supermarket. It’s the perfect setting to relax, socialize with friends, and enjoy the vibrant atmosphere. The neighbouring Villages at Coverley town square offers even more options for shopping, dining, and entertainment.
A new home at The Residences at Coverley offers not only modern comfort and convenience on your doorstep but an ideal location. Just minutes away are south coast beaches, top-tier restaurants, golf courses, tennis facilities, and other attractions.
For real estate investors, these homes offer excellent rental potential, with projected cash returns ranging from 4% to 6% depending on the model.
Make your dream home a reality today! Homes are being sold off-plan, with site preparation and infrastructure works already underway, and home construction in progress.
Homes are being offered at introductory pricing which is subject to change. Your agent can confirm price and availability.
Plans are provided for illustrative purposes only, may not be to scale, and may be subject to change without prior notice.
All dimensions, layouts, and specifications are approximate and should not be relied upon as exact representations of the completed development. Kitchen appliances are included as specified; however, all other furnishings, décor, and finishes shown are for visual representation only and are not included in the sale.
SALE PRICE: BDS$656,500 – US$328,250































