Introducing The Residences at Coverley, by IMAGINE, a new place to call home. Newly built turnkey homes for sale in a one-of-a-kind master-planned residential community.
The Residences at Coverley offers stylish new homes nestled on inviting streetscapes, unparalleled convenience, breathtaking green spaces, strong community connections, safety and security, and sustainable living.
The first of four phases offers nine floor plans from standalone homes to modern townhouses, spanning one and two stories with three or four bedrooms. All homes offer modern open plan designs, kitchens outfitted with appliances, master suites with walk in closets, patios, paved parking aprons, fencing and a landscape package.
The vision for the new Town Centre at The Residences at Coverley is outstanding. Picture shaded lounging areas, dining venues, retail stores, green areas, a mega supermarket, and more. Residents will enjoy this new town centre and the Villages’ town square next door.
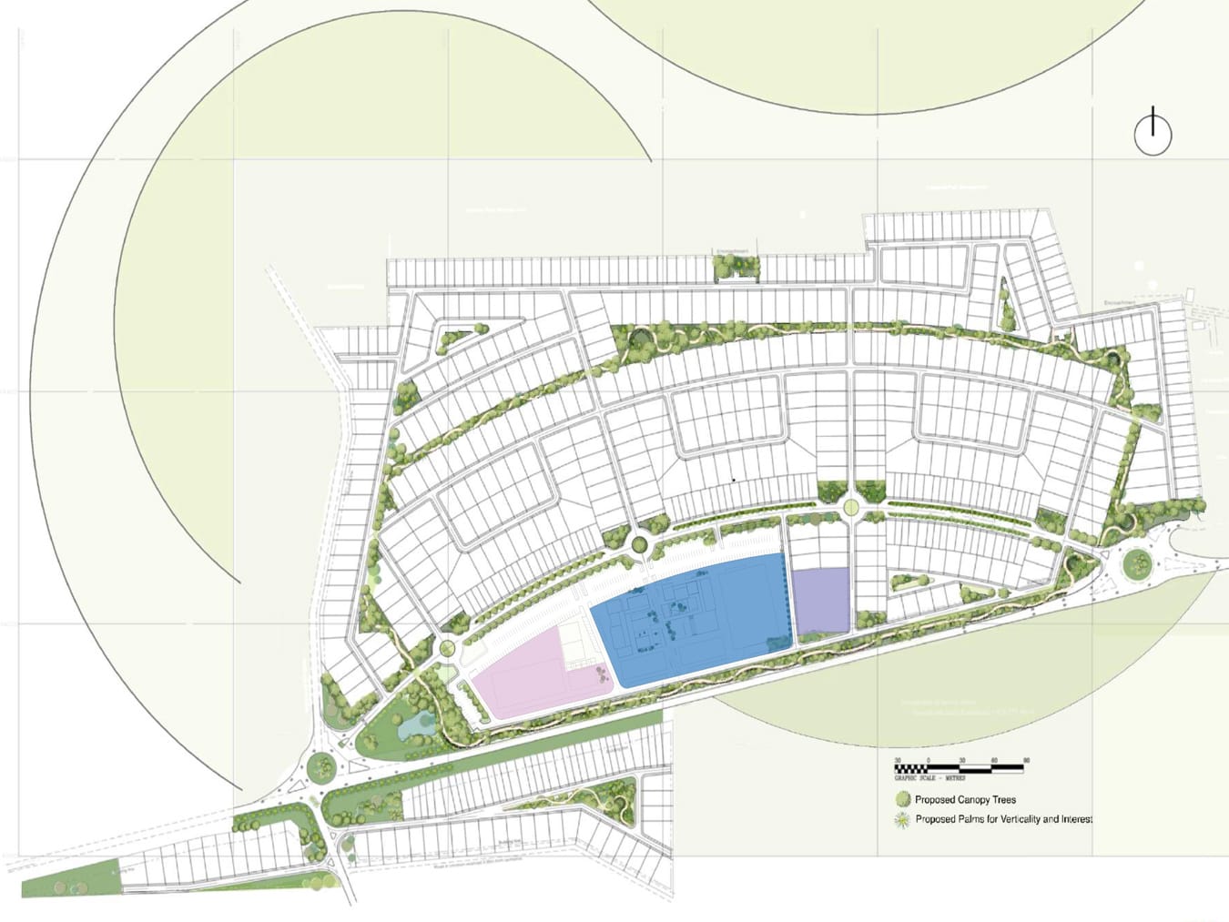
At the heart of the community’s outdoor living experience is the “Green Necklace,” a brilliantly designed 10-12-foot-wide community pathway that encircles a large portion of the community. Perfect for leisurely strolling or jogging, this pathway is lined with carefully selected canopy trees and shrubs. A scenic, shaded escape for residents of all ages and their pets.
Along the pathway, residents will discover thoughtfully placed recreational and relaxation areas, including play areas for children, pickleball courts, and amphitheater-style seating—ideal for gatherings or quiet reflection. The community is further enhanced by “pocket parks” scattered throughout, creating intimate green spaces for residents to enjoy. Each home within the community will have its own tree planted, contributing to the overall verdant landscaping and the aesthetic appeal of the community.
Your new home could be here with modern comfort and convenience at your doorstep and a caring community. Make this your reality!
Homes being offered now off-plan at introductory pricing! Prices vary depending on home design and specific lot.
Please note the computer generated images are for illustrative purposes only.
SALE PRICE: BDS$808,000 – US$404,000
Price and Availability – 09.19.2025 BBD