Residences At Coverley Serene

US$341,000

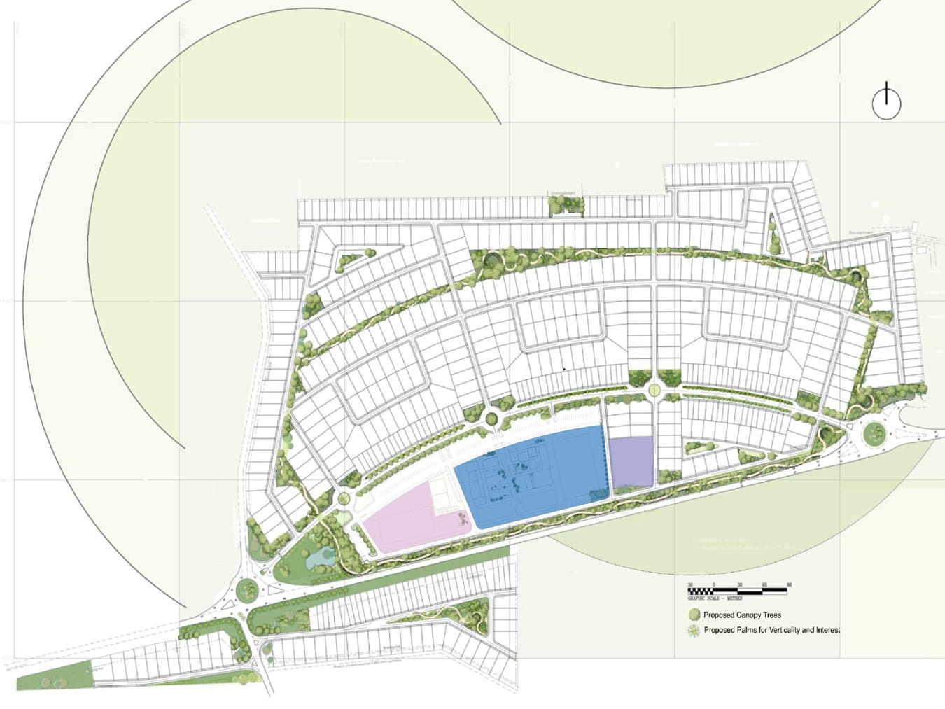
Property Information

Property Highlights

2
Bathrooms
4
Bedrooms

Property Highlights

Description

Property Information

Map

Loading...

What's Nearby

Need guidance on selecting the Perfect Long Term Rental?​


Need guidance on selecting your Perfect Property?

Help me find my dream property


List Your Property With Us!


Need to get the value of your Property?